Địa chỉ: 169A , Kênh Tân Hóa , Phường Tân Phú , TPHCM
Email: salesxl@nntqd.com
Hotline: 0988006378
Đóng
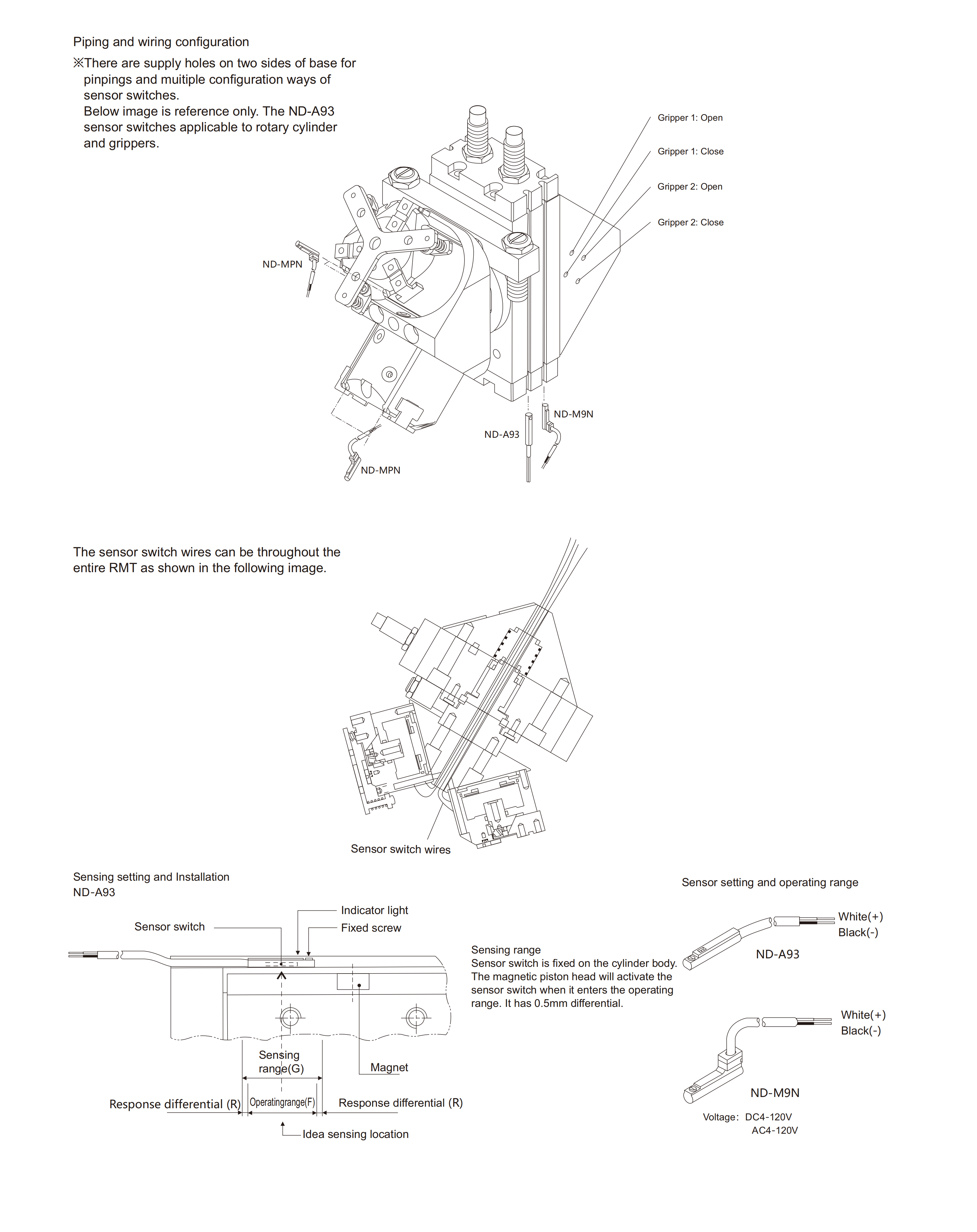
Đường khí được thiết kế đi bên trong, giúp tránh hiện tượng ống khí bị xoắn khi kẹp tay đảo chiều.
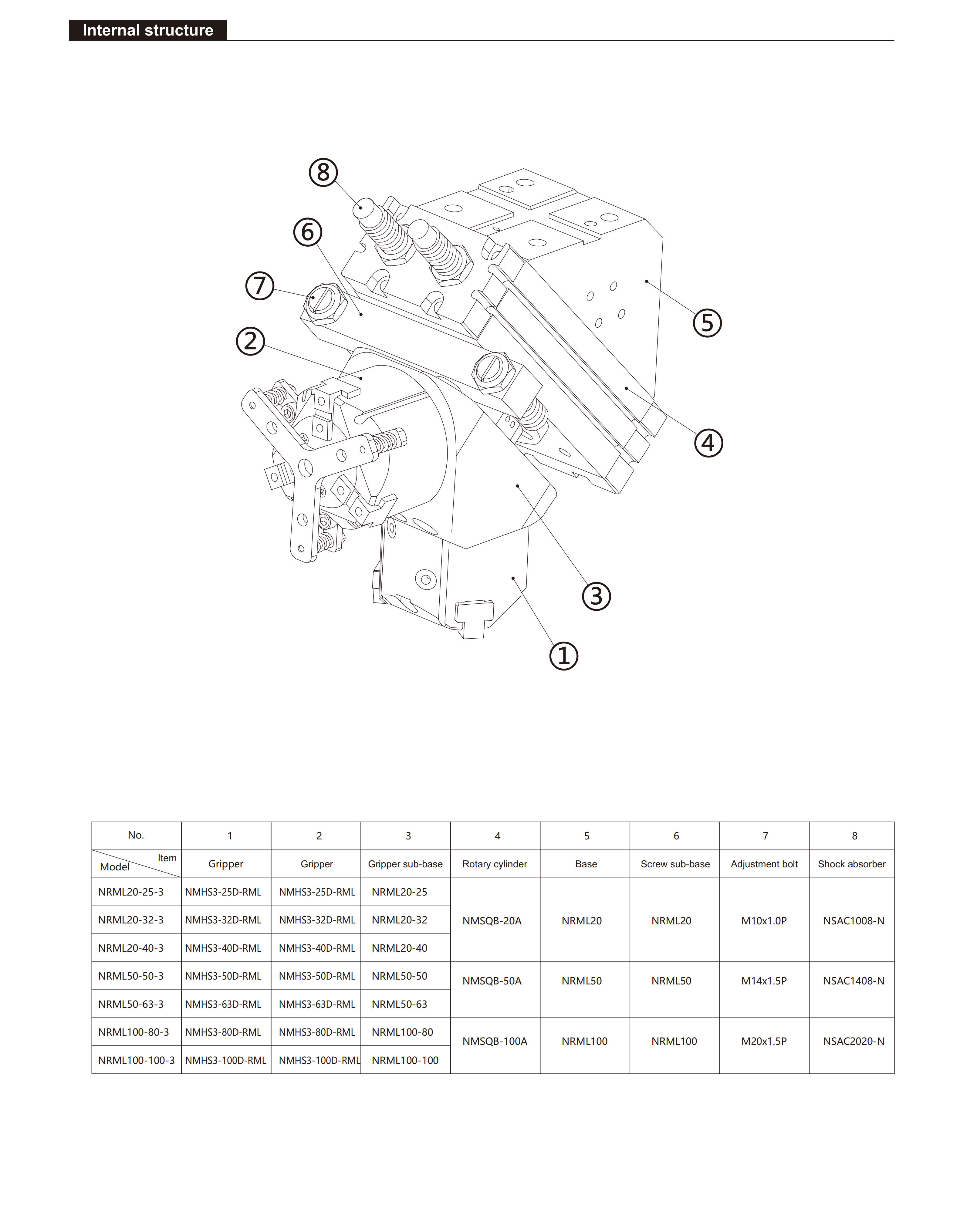
Thích hợp sử dụng cho thiết bị gia công hoặc thiết bị lắp ráp trong các thao tác tải/ dỡ phôi (lên xuống vật liệu).
Chia sẻ:
UY TÍN - CHẤT LƯỢNG - TẬN TÂM